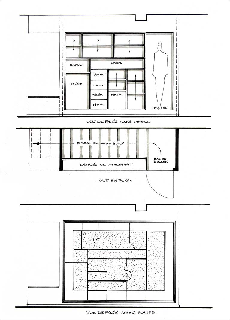
Cage d'escalier

Comment donner à votre cage d'escalier une élégance unique et fonctionnelle ? En faisant un meuble !
Lorsque vous ouvrez les portes et les tiroirs vous êtes charmés par l'originalité et l'efficacité de la disposition des différents espaces.
Techniquement, chaque composition artistique s'appuie sur les nouvelles technologies, dont la découpe au laser.
Elles permettent de créer, dans le bois, des formes uniques qui se déclinent en un ensemble harmonieusement proportionné.
On peut parler ici de mobilier "haute couture" à la carte.